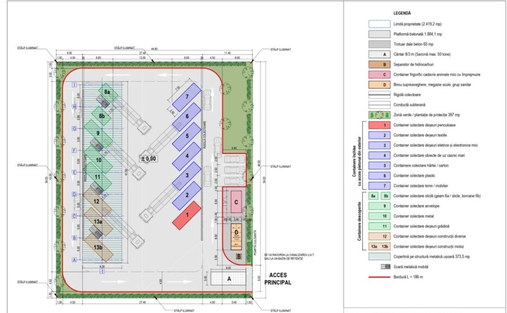
CENTRU DE COLECTARE SELECTIVĂ A DEȘEURILOR PRIN APORT VOLUNTAR ÎN COMUNA VALEA CHIOARULUI JUDEȚUL MARAMUREȘ

finanțat prin Programul Național de Redresare și Reziliență (PNRR)

UAT Comuna Valea Chioarului implementează proiectul :

„CENTRU DE COLECTARE SELECTIVĂ A DEȘEURILOR PRIN APORT VOLUNTAR ÎN COMUNA VALEA CHIOARULUI, JUDEȚUL MARAMUREȘ”, finanțat prin Programul Național de Redresare și Reziliență (PNRR), Componenta C3- Managementul deșeurilor, Investiția I1- Dezvoltarea, modernizarea și completarea sistemelor de management integrat al deșeurilor municipale la nivel de județ sau la nivel de orașe/comune, Subinvestiția I1.A- Înființarea de centre de colectare prin aport voluntar.

Obiectivele proiectului: Dezvoltarea unui management al deșeurilor eficient, prin suplimentarea capacităților de colectare separată, pregătire pentru reutilizare și valorificare a deșeurilor în vederea continuării procesului de conformare cu prevederile directivelor specifice și a tranziției la economie circulară. 

Valoarea totală a proiectului: 3.830.914,00 lei
Data începerii și finalizării proiectului: 06.03.2023 - 30.09.2024
Cod Proiect: C3I1A0122000301

Mai multe informații despre proiect

PNRR. Finanțat de Uniunea Europeană – UrmătoareaGenerațieUE

Conținutul acestui material nu reprezintă în mod obligatoriu poziția oficială a Uniunii Europene sau a Guvernului României.

https://mfe.gov.ro/pnrr/                   https://www.facebook.com/PNRROficial

We use cookies

We use cookies on our website. Some of them are essential for the operation of the site, while others help us to improve this site and the user experience (tracking cookies). You can decide for yourself whether you want to allow cookies or not. Please note that if you reject them, you may not be able to use all the functionalities of the site.